× Overview Amenities Payment Plan Floor Plans Location Master Plan Gallery

Get in Touch

  +971 56 448 4762 WhatsApp  +971 56 448 4762
× Home Projects Developers Communities Contact

Beverly Hills Summary

By Damac   |     DAMAC Hills

Starting From

AED 4.26M  

Status Resale
Property Types Villas
Unit Types 3, 4, 5 & 6 Bedrooms
Handover Q4 2020
Developer Damac
Community DAMAC Hills
Down Payment 20%
Payment Plan 60/40 Easy Payment Plan

Overview

Situated within the exclusive DAMAC Hills community, Beverly Hills by DAMAC is a top-rated townhouse and villa enclave influenced by the dazzling style of the elite California lifestyle. This is an example of a flawless combination of nature and contemporary comfort. Built in the style for residents who want a sophisticated, family-friendly environment without compromising on urban conveniences, Beverly Hills is a luxury residential product in the middle of one of the most sought after golf course communities in Dubai.

Surrounded by fields of luscious green, and offering a golf course of world standing, Beverly Hills has it all, along with state of the art facilities, highways and easy access to the city centre.

Infrastructure and Architecture

The design of the villas in Beverly Hills adapt the modern look based on the contemporary look of houses in California. The typical features are clean architectural lines, broad glass facade, and the layout of an open plan interior. It features the use of natural light, air flow and open spaces in the homes that portray a cool and elegant appearance.

The cluster architecture has:

  1. Duplex living rooms of luxury villa
  2. All the bedrooms with an en-suite bathroom En-suites in all the bedrooms
  3. Contemporary kitchens that boast of high end fittings
  4. Green design that is both environmentally friendly and sustainable

Final Thoughts

Beverly Hills by DAMAC is not a combination of residences, it is the artisan lifestyle that is a fusion of luxury, simplicity, beauty, and tranquility. Regardless of whether you intend to settle with your family or want to invest in the booming luxury real estate of Dubai, you can hardly find a more appropriate venture than Beverly Hills both in terms of emotional comfort and future returns.

Feature & Amenities

Swimming Pool

Swimming Pool

Jacuzzi

Jacuzzi

BBQ Area

BBQ Area

GYM

GYM

Public Parks

Public Parks

Near Golf

Near Golf

Read More...

Payment Plan

Down Payment

20%

Down Payment

On Booking Date
During Construction

40%

During Construction

Easy Installments
Handover

40%

On Handover

100% Completion
Read More...

Location Map

Dubai Sports City

Dubai Sports City

10 Minutes

Dubai Marina

Dubai Marina

20 Minutes

Downtown Dubai

Downtown Dubai

25 Minutes

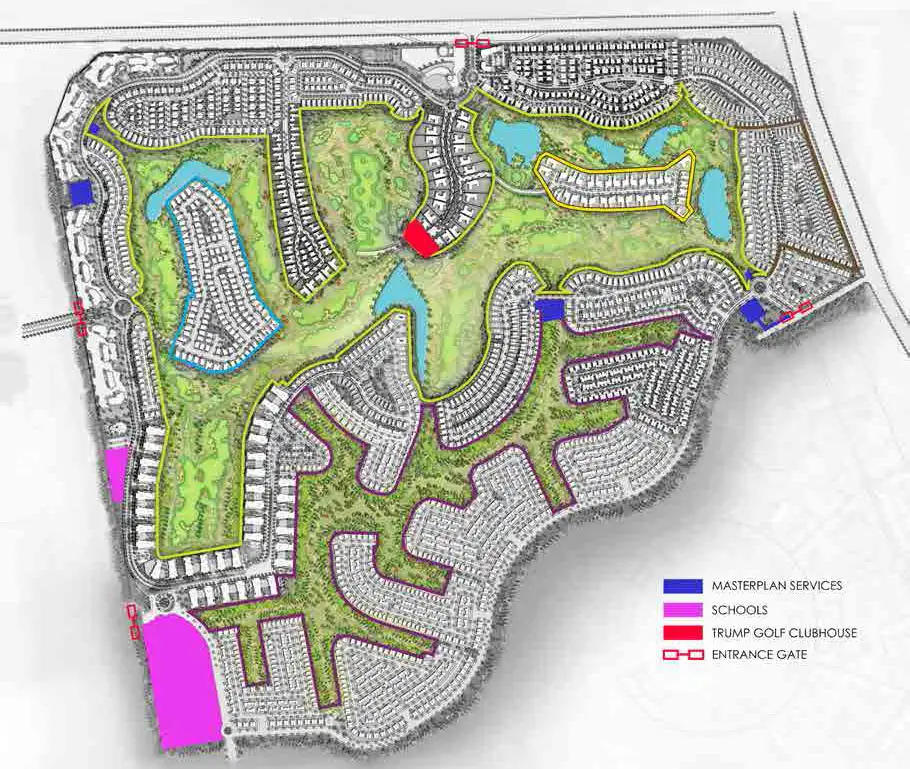
Master Plan

BBQ Areas

BBQ Areas

Community Hall

Community Hall

Cycling Trails

Cycling Trails

Fitness Centre

Fitness Centre

Gardens and Parks

Gardens and Parks

Hospital

Hospital

Jogging Trails

Jogging Trails

Read More...

Floor Plan

Read More...
New Launch Maldives 5 at Damac Islands
Starting From

AED 547K

Elo 2 at Damac Hills 2

  Dubai

New Launch Maldives 5 at Damac Islands
Starting From

AED 979K

Lagoon Views

  Dubai

New Launch Maldives 5 at Damac Islands
Starting From

AED 1.80M

Natura at Damac Hills 2

  Dubai

New Launch Maldives 5 at Damac Islands
Starting From

AED 2.16M

The Sapphire

  Dubai

View More

SUBSCRIBE NOW

Stay up to date with us

Enter your email address
By submitting the form, you agree to our Terms & Conditions and Privacy Policy